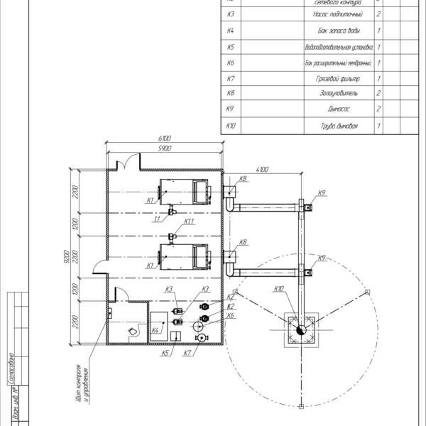
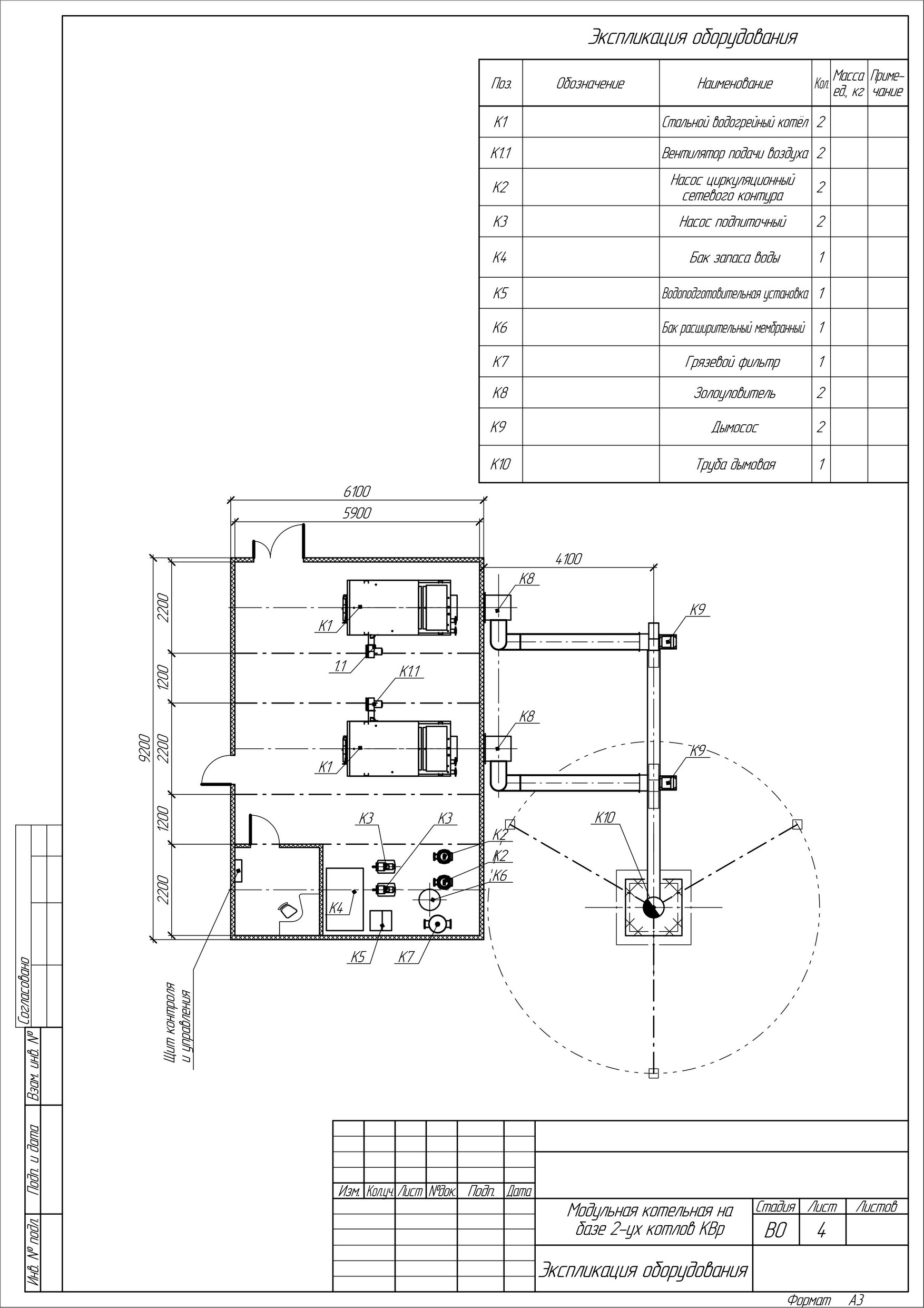
Описание котельной
Модульная котельная на дизельном топливе мощностью 5 МВт - это комплекс устройств расположенный в готовом здании (стационарные котельные) либо в собранном здании (модульные котельные) предназначенный для отопления и горячего водоснабжения жилых и производственных помещений, а также предприятий с технологическими процессами где требуется вода температурой не более 115°C. В состав котельной входят водогрейные котлы КВа с автоматической топливоподачей, насосы, газоходы, дымовая труба, дымососы, золоуловители, опорные конструкции и тепловая изоляция. Водогрейная котельная установка работает на жидком топливе - дизельном топливе. Топливоподача и шлакоудаление производится автоматическим путем. Коэффициент полезного действия данной сборки котельной не менее 80%. По желанию заказчика комплектация может меняться.
Более подробную информацию Вы можете получить у наших специалистов. Чтобы купить модульную котельную на дизельном топливе мощностью 5 МВт с 2 котлами достаточно позвонить нам либо оставить заявку и мы обязательно с Вами свяжемся.


